Description
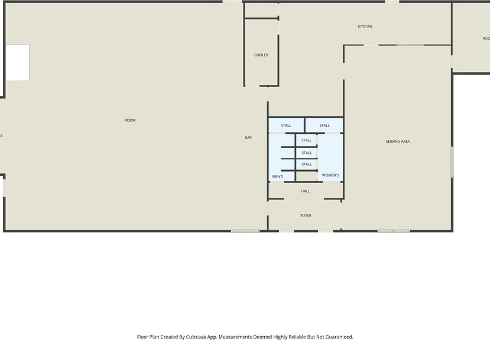
Built in 2005, this property was previously used as a restaurant, bar and event center and is well-equipped for a variety of business uses. Features include a large parking lot, excellent road frontage with signage, and men's and women's multi-stall restrooms. The building offers a commercial kitchen space with an Ansul fire suppression system already in place, making it ideal for food service or event use. Property is serviced by a well and septic system with a recirculating sand filtration setup. With its layout and location, the property could easily be adapted for office, showroom, service-based business, or trucking operations. Additional acreage available. Access to Diamond city water is located across Aspen Rd. This is a flexible, well-located property with strong potential for a wide range of commercial uses.
Property Details
| Days On Market | 0 days |
|---|---|
| Lot Size | 5 Acres |
| Listed By | REECE NICHOLS REAL ESTATE-SPRINGFIELD |
IDX information is provided exclusively for consumers’ personal, non-commercial use, that it may not be used for any purpose other than to identify prospective properties consumers may be interested in purchasing, and that the data is deemed reliable but is not guaranteed accurate by Northwest Arkansas Board of REALTORS® MLS
An Equal Opportunity Company. Equal Housing Opportunity.
